Bauaufgabe
Sie brauchen neuen Wohnraum, weil vielleicht die Kinder größer geworden sind und gern bei Ihnen wohnen möchten ?
Sie haben ein flaches Satteldach oder vielleicht ein Binderdach, das nicht zum Ausbau geeignet ist ?
Dann ist eine Dachaufstockung mit einem neuen Satteldach eine sehr gute Lösung !
Jetzt bauen Sie gleich neuen Wohnraum und sanieren Ihr altes Dach, wenn es reparaturbedürftig ist. Sie können, wenn es der Bebauungsplan erlaubt, sogar ein neus Vollgeschoß auf Ihr Haus setzen. Ich untersuche Ihr Haus nach dieser Möglichkeit. Die Aufstockung erfolgt dann in Holz-Tafel-Bauweise - leicht und hochwärmedämmend.
Der Bauherr, Inhaber einer Sanitär- und Heizungsfirma in Haßloch/Pfalz wohnte im vorderen Altbau und die rückwärtige, ehemalige Scheune wurde als Lager, Werkstatt und kleines Büro viele lange Jahre benutzt.
Der Wunsch war jetzt, in einem neuen Haus zu wohnen, um auch im Alter die Firma an einen Nachfolger übergeben zu können. Mit dieser Lösung hoffte man auch, sich dann leichter vom Betrieb lösen zu können. Ein geeignetes Grundstück wurde nicht gefunden bzw. ergab sich dadurch auch immer der weite Weg zum Betrieb. Damit reifte der Gedanke, das alte Dach der heutigen Werkstatt abzureißen, eine neue Zwischendecke einzuziehen und darauf dann ein neues Gebäude aufzubauen.
Nach Prüfung der alten Bausubstanz konnte die Tragfähigkeit für den Aufbau positiv geklärt werden. Auch das Bauamt war bereit, die Dachaufstockung zu genehmigen. Nach den Verhandlungen mit den Nachbarn und deren ebenfalls grundsätzlich positiver Beurteilung konnte dann die Planung beginnen.
Die Aufstockung wurde dann mit einem Fertighaus in Holztafelbauweise geplant und ausgeführt, um die Belastung des Altgebäudes so gering wie möglich zu halten. Durch die Fertigbauweise konnten natürlich auch kurze Aufbauzeiten für das Haus gewährleistet werden und somit auch Unterbrechungszeiten für den Werkstattbetrieb sehr gering gehalten werden.
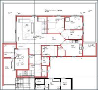
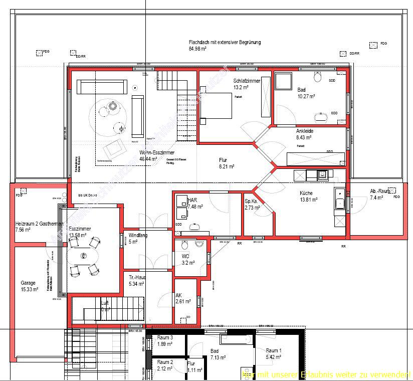
Bauplanung
Die Bauplanung konnte dann nach gemeinsamer Klärung der Wohnwünsche zügig gelöst werden.
Hierbei war wieder eine große Hilfe die CAD-Planungssoftware mit der Möglichkeit, das Gebäude rasch zu visualisieren, um fortlaufend eine Eindruck des neuen Gebäudes zu bekommen. Auch für die Detailplanung wie den Austrittserker zur Dachterrasse ist die Visualisierung eine große Hilfe für Bauherr und Architekt.
Ebenso war die Visualisierung für das Bauamt und die Nachbarn eine gute Hilfe, sich den Neubau im Gegensatz zum vorhandenen altem Dach vorzustellen. Die Nachbarschaftsanhörung brachte dann auch keine größeren Einwände und das Bauamt erteilte dann die Baugenehmigung.
Bauausführung
Nach der Werk- und Detailplanung und der Tragwerksplanung wurde der Baubeginn in Angriff genommen. Klar war, dass der Bauherr viel in Eigenarbeit mit seinen Leuten ausführen wollte. Das Altdach wurde demnach in Eigenarbeit abgerissen. Ein Bauunternehmer erstellt dann die neue Betonzwischendecke, was nicht ganz einfach war, weil die alte Halle stützenfrei überspannt werden sollte.
Das Fertighaus wurde dann innerhalb einer Woche regensicher als Ausbauhaus aufgebaut. Der Innenausbau und die Fertigstellung wurde dann wieder vom Bauherrn nach seinen zeitlichen Möglichkeiten ausgeführt.
Heute ist die Bauherrschaft sehr zufrieden mit Ihrer Bauentscheidung der Dachaufstockung.
Hausbilder
|
|
|
|
|
|
|
|
|
|
|
|




















