Barrierefreies Bauen
Barrierefreies Wohnen für alle
- heißt heute nicht, nur behindertengerecht zu bauen
- heißt heute - vorsorglich planen für das Alter, um sein Heim auch im Alter weitgehendst selbständig bewohnen zu können
Der Vorteil barrierefreies Planen ist es, dass Ihr Lebensraum so umfassend flexibel und variabel geplant wird, dass Sie darin alt werden können. Wenn altersbedingte Einschränkungen kommen würden, sollten Sie Ihr Heim auch ev. mit dem Rollstuhl befahren können oder sogar ein Hausaufzug eingebauen können. Diesen Raum kann man bis zum Notfall z.B. als Abstellkammer nutzen.
Die wichtigsten Grundsätze, die sowohl beim Neubau als auch bei der Modernisierung beachtet werden sollten:
- Wände, Decke und Wohnungseingangstüren mit erhöhtem Schallschutz ausführen;
- Terrassen, Balkone, Loggien usw. mind. 4,5 m² groß ausführen und eine Bewegungsfläche von 1,50 x 1,50 m ( Rollstuhlwendekreis ) ausführen und feste Brüstungen nicht höher als 60 cm ausführen;
- Fenster sollen hindernisfrei sein mit niedriger Griffanordnung, keine Schwingflügel verwenden und im Erdgeschoß einbruchsicher sein;
- Rolladen sollten elektrisch bedienbar sein;
- Bodenbeläge müssen rutschhemmend, fest verlegt und elektrostatisch nicht aufladbar sein.
- Bedienungselemente, z.B. Türdrücker, Schalter, Sanitärarmaturen, Fensteröffnungen usw. sollen nicht scharfkantig oder versenkt ausgeführt, nicht höher als 85 cm und mind. 50 cm aus Wandecken od. ähnlichen festen Elementen entfernt sein;
- Hilfsmittel und Haltegriffe in erforderlicher Höhe sicher und tragfähig anbringen;
- alle modernen Medien über die Multisteckdose in jeden Raum vorsehen;
- Türöffner am besten über Türsprech-Video-Anlage schalten;
Die Elektroanlage sollte mit einem modernem Bussystem ausgeführt werden, damit sofort oder später jederzeit eine Energie sparende, komfortable und bedienerfreundliche Steuerung installiert werden kann. Somit lassen sich Ihre geänderten Bedürfnisse leicht anpassen. Die Bus-Steuerung kann die Betätigung von Beleuchtungs-, Rölladen-, Jalousie-, und Heizungsanlage übernehmen und diese auch miteinander verknüpfen. Über Funksender können alle diese Elemente gesteuert werden.
Das sind wertvolle Beiträge für das barrierefreie Wohnen heute und im Alter.
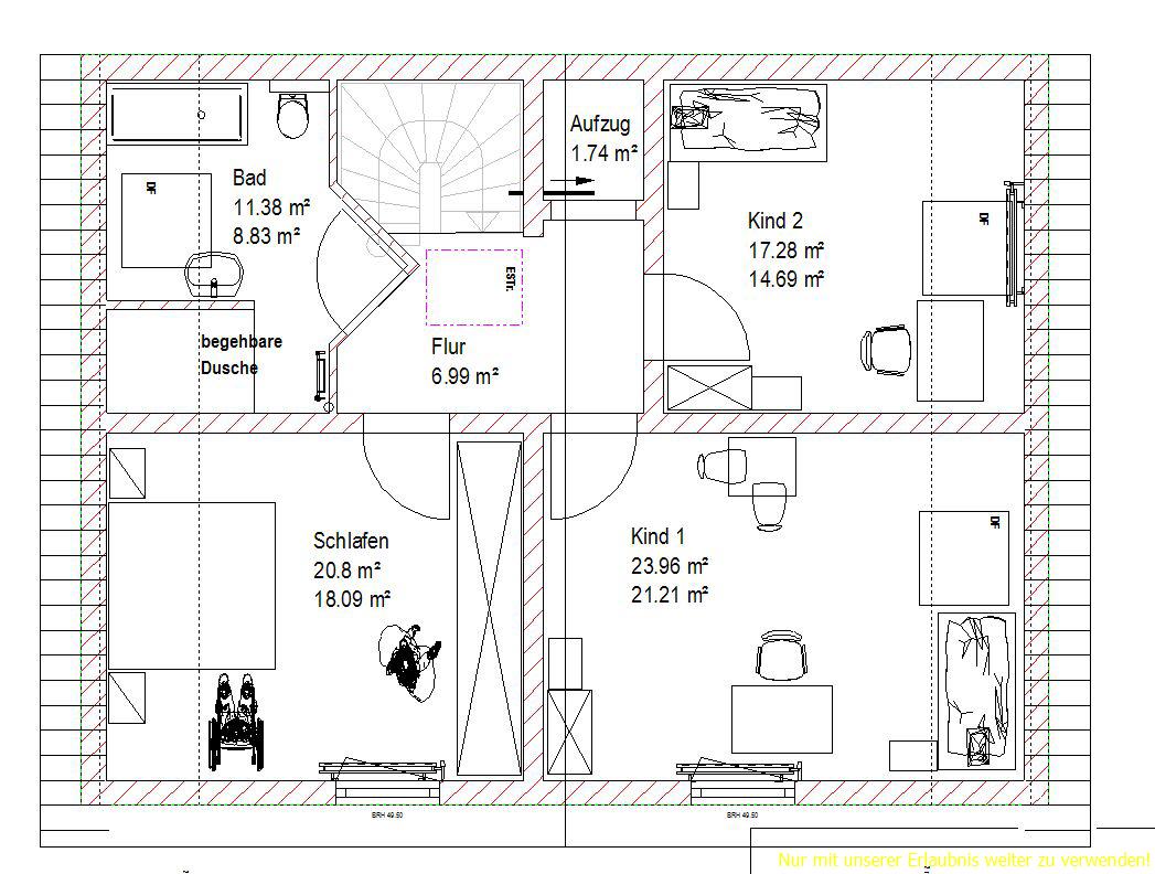
Barrierefreies Bauen
Barrierefreies Wohnen
- von der Garage in jedes Wohngeschoß
- 100 cm breite Türen überall
- 150 cm Rollstuhlwendekreis vor jeder Tür oder Möbel
- große Küche zum ungehindertem bewegen
- Extra-Zimmer für die Pflegeperson, natürlich vorab als Kinderzimmer nutzbar
- rollstuhlgerechtes Badezimmer mit bodenebener Dusche und höhenverstellbares Waschbecken
- große Terrasse mit bodengleichen Türübergängen











